Kopfzeile

Projekt mit Grundstück an Top Lage!

Haus zum Kauf in Moutier (2740) / Objektnummer: 4011

Haus zum Kauf in Moutier (2740) 1.850.000 CHF

3.918 m² Wohnfläche

13.045 m² Grundfläche

BalkonGarageGartenfläche

Projekt Rendite Objekt an Top Lage direkt am Wasser!

2740 Moutier liegt im Arrondissement administratif Jura bernois, im Kanton Bern und hat 7'262 Einwohner. 

Die Immobilienpreise haben sich in den letzten fünf Jahren um +10.3% verändert (Kanton: +13.7%).

Sie möchten Ihr Geld anlegen und eine gute Rendite erzielen?

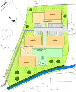
Hier sind Sie genau richtig, 4 Mehrfamilienhäuser mit total 29 attraktiven Neubauwohnungen, mit Tiefgaragen, Kellerplätzen und einer attraktiven Umgebungsgestaltung.

Innerhalb der grossen Parzelle von 13'045 m2, entsteht ein Spiel und Entspannungsbereich von 604 m2, daneben gibt es auch noch zusätzlich grosszügige Rasenflächen zum verweilen.....

Jede Wohnung beinhaltet entweder einen Garten oder einen grosszügigen Balkon.

Alles zusammengefasst

4 Mehrfamilienhäuser mit total:

  • 44 Wohnungen
    12 x 2 1/2 Zimmerwohnungen
    12 x 3 1/2 Zimmerwohnungen
    12 x 4 1/2 Zimmerwohnungen
    4 x 2 1/2 Zimmer Attikawohnungen
    4 x 4 1/2 Zimmer Attikawohnungen
  • 4 Lifte der Marke Procap
  • 32 Terrassen
  • 12 Gartenanteile
  • 45 Tiefgaragenplätze
  • 44 Kellerplätze
  • 4 Kinderwagen-Fahrradräume
  • 4 Waschräume
  • 4 Technikräume
  • 4 Hausmeisterräume
  • 4 Divers Räume
  • Grundstück von 13'045 m2
  • Gesamtkubatur der 4 Häuser 15'492 m3

Mögliche Mietzinseinnahmen und Renditemöglichkeiten

Netto-Mietzinseinnahmen sind möglich von: 

CHF 693'720.- pro Jahr

CHF 57'810.- pro Monat!

Berechnet aus diesen Mietzinseinnahmen ergibt sich eine Nettorendite von 4.78 %

Haben wir Ihr Interesse geweckt?

Vereinbaren Sie einen Besichtigungstermin unter 076 324 15 66 oder 079 426 93 92 (Bitte keine Anrufe von Maklern)

Aufgrund unserer langjährigen Erfahrung beraten und begleiten wir Sie gern als Immobilienspezialisten beim Kauf oder Verkauf ihrer Immobilie.

Da uns Ihre Zufriedenheit besonders am Herzen liegt, prüfen wir die Verkaufsobjekte, die uns anvertraut werden, gründlich und schätzen Sie realistisch ein und gehen beim Verkauf transparent auf Ihre Bedürfnisse und Wünsche ein.

Haben Sie auch gute Erfahrungen mit uns gemacht? Dann freuen wir uns, wenn Sie uns weiterempfehlen. Für jede Immobilie welche Sie uns vermitteln und wir verkaufen können, schenken wir Ihnen bis zu CHF 3000.-!

Ihre Immoworldswiss GmbH

Thomas und Christine Liptay

Alle Angaben ohne Gewähr und Irrtümer vorbehalten!

Lageplan

Inhalt wird geladen

Dokumente

Preise
Kaufpreis
1.850.000,00 CHF
Fakten
Objekttyp
Haus
Wohnfläche
3.918 m²
Balkonfläche
717 m²
Gartenfläche
844 m²
Grundfläche
13.045 m²
Status
verfügbar
Thomas & Christine Liptay

Immoworldswiss GmbH

Thomas & Christine Liptay